중정이 품은 새로운 일상 분당 운중동 늘해랑 > HOUSE
중정이 품은 새로운 일상 분당 운중동 늘해랑
- 관리자 오래 전 2025.11.28 11:16 HOUSE 인기
-
1,301
0
처음 접하는 질병, 기후 위기와 에너지 비용 등 주택에 요구되는 것이 많아지는 시대.
하지만, ‘사람이 사는 곳’이기에 포기할 수 없는 것도 많다. 취향을 아끼고, 프라이버시를 지키고, 그러면서 마을과도 어우러지는 집.
쉽지 않은 질문에 ‘늘해랑’이 내놓은 해답지를 만났다.

코로나 유행이 한창이던 시기, 건축주와 목금토건축사사무소 권재희 소장의 만남으로 ‘늘해랑’의 설계가 시작되었다.
당시 많은 것이 베일에 싸여 있던 새로운 질병으로부터의 위협 이에 대응하는 격리와 마스크 등의 부자유가 언제 끝날지 알 수 없던 시기에 ‘기존의 주택이 현재 우리의 일상을 담을 수 있을까?’라는 건축주의 질문에 권 소장은 “건축가로서는 흥미로운 주제였고, 도전하고 싶은 질문이었다”며 당시를 떠올렸다.
중요해진 위생과 급격하게 바뀌는 근무 환경, 에너지에 대한 생각의 변화는 자연스럽게 주택이 가지는 기능의 변화도 함께 가져왔다.
늘해랑은 시대와 사람들의 생각이 바뀌는 혼란스러운 시기에 해답을 찾아가는 과정에 놓였던 주택이었다.
건축주가 권 소장을 만나 요청했던 것은 크게 세 가지였다. 우선은 프라이버시였다. 건축주는 사람과 어울릴 때는 즐겁게 어울리지만, 혼자 있을 땐 온전히 혼자 있기를 바랐다.
더욱이 주택 부지는 남, 동, 북쪽 3면이 도로로 둘러싸였고, 남측으로는 공용주차장 건립이 예정되어 있었다.

석재 외벽 마감에 따스한 온기를 주는 입구. 깔끔한 벽에 나무의 그림자가 미려하게 내려앉았다.
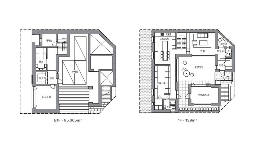
주택은 마을과의 조화를 이뤄야 함과 동시에 외부로부터의 시선 차단은 필수였기에, 중정형 주택이라는 결과가 도출되었다.
중정은 긴 동선과 복도가 전제되는 만큼 다소 공간이 좁아질 수 있었지만, 건축주는 “세심한 공간 분배와 창 배치 덕분에 좁다는 느낌은 거의 들지 않는다”고 전했다.
다른 하나는 위생과 외부 활동의 부자유였다. 결국 잘 씻어야 했고, 외부 활동이 제약되는 상황이라 내부에서라도 대안 녹지를 즐길 수 있어야 했다.
지하는 환기와 단열을 충분히 보완하고 작은 운동실을 만들었다.
출입통로 가까이에 욕실과 드레스룸을 배치해 생활 동선 상에서 위생을 자연스레 챙길 수 있게 했다. 또한 서재를 겸한 오피스 공간을 별도로 마련해 업무 형태의 급작스런 변화에도 충분히 대처가 가능하도록 했다.
마지막은 친환경이었다. 건축주와 건축가는 친환경에도 주택이 기여할 수 있는지 깊은 관심을 두었다. 당장 건축 비용에서의 경제 논리보다 향후 에너지 절감 등 장기적인 안목을 중시했다.

안채에서 건축주의 사무실로 쓰이는 별채를 바라보는 풍경. 가족이 다른 공간에 있어도 함께 중정의 자연을 누린다.

거실에서 주방에 이르는 동선은 대지의 고저에 맞추어 배치하여 공간의 높낮이가 자연스럽게 변하며 리듬감을 느낄 수 있다.
단열과 기밀 등 에너지 성능에 있어 한국패시브건축협회가 제시하는 인증 기준을 통과해 주택은 패시브 인증을 획득했다.
한편, 권 소장은 “패시브 건축물은 에너지 및 공사비용 절감에 초점을 맞추다 보니 종종 외단열 두른 다소 둔탁한 모양이 많았다”
며 “생각과 감성을 담아내려 디테일 연구에 많은 노력을 기울였고, 그러면서도 에너지 손실을 막고자 했다”고 전했다.
창 크기와 배치, 건물 형태에서도 중정을 통해 자연광을 충분히 활용할 수 있도록 신경 썼다. 또한 집안 곳곳에 소정원을 배치하여 채광과 환기뿐 아니라 다양한 감성의 자연을 집안에서도 느낄 수 있게 했다.
덕분에 중정을 가졌으면서도 주택은 늘 햇빛을 가득 담게 되었는데, 이런 중정에 내려앉은 풍성한 햇살의 모습에서 건축주는 ‘늘해랑’이라는 집 이름을 떠올렸다고 한다.
포스트 코로나는 많은 주택에 적지 않은 변화를 줬다. 하지만, ‘기능은 변해도 본질은 변하지 않는다’는 명제가 틀리지 않았음을 권재희 소장과 건축주, 그리고 늘해랑이라는 주택 프로젝트가 보여주고 있다.

현관에서 바라본 소정원 모습. 시야의 끝에 정원을 배치하여 벽으로 인한 갑갑함을 덜고 채광 역할을 한다.


서재는 업무에 집중할 수 있도록 별채로 구성되었으며, 건축주의 요청에 따라 담백하면서도 따스한 느낌이 되도록 원목으로 마감했다.
운중동 주택의 포인트

욕실에서 누리는 녹색
화장실은 가장 내밀한 공간이기에 갑갑해지기 쉬운 환경이다. 중정으로 낸 세로로 긴 창은 채광과 더불어 쉼을 선사한다.

시각으로 늘 연결된 별채
별중정으로 연결된 안채와 별채는 폴딩 도어를 설치하여 열고 닫음에 따라 마당으로 확장될 수 있다.

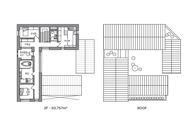
계단이 주는 조형적 즐거움
다락으로 올라가는 계단은 철판을 접어 만들었다. 덕분에 얇고 독특한 비주얼을 만들며 오르내리는 과정이 즐거워진다.


2층에 자리한 욕실은 직사광선이 아닌 간접광을 취함으로서 여유로운 힐링 공간을 연출했다.

복도 바닥의 한지 창을 통과한 빛은 차분한 분위기를 더한다.

3면이 도로로 둘러싸여 프라이버시 확보는 주택 설계의 주안점이었다.


마당 깊은 곳까지 햇살이 내리쬐는 늦가을 이른 아침의 모습.
HOUSE PLAN
대지위치 : 경기도 성남시 분당구
| 대지면적 : 338.5㎡(102.39평)
| 건물규모 : 지상 2층, 지하 1층 + 다락
| 거주인원 : 3명(부부 + 자녀1)
| 건축면적 : 166.43㎡(50.34평)
| 연면적 : 443.15㎡(134.05평)
| 건폐율 : 49.17%
| 용적률 : 68.14%
| 주차대수 : 3대
| 구조 : 철근콘크리트 구조
| 단열재 : 벽·지붕 - T250 그라스울보온판 40K, TIFUS 단열프레임
| 외부마감재 : 벽 - T30 사비석 / 지붕 - T0.7 VM-ZINK 돌출이음
| 내부마감재 : 친환경 수성페인트 도장, 수입 우드 타일
| 욕실 및 주방 타일 : 수입 타일, 수입 세라믹 타일
| 수전 등 욕실기기 : 아메리칸스텐다드, 범한, 토토
| 주방 가구 : BECA코리아, 수입 세라믹 타일(싱크대 상판)
| 계단재·난간 : 오크 원목
| 현관문 : 테니도어, 엔썸
| 중문 : 위드지스
| 방문 : 합판 위 무늬목
| 붙박이장 : BECA코리아
| 창호재 : 엔썸 케머링 시스템창호
| 열회수환기장치 : Zehnder Q600(ERV)
| 전기·기계·설비 : ㈜한길엔지니어링
| 구조설계 : 건축구조연구소 다우
| 에너지컨설팅 : (사)한국패시브건축협회
| 인테리어 : 엔터 디자인 010-8860-5659
| 조경 : 안마당 더 랩 Instagram : @anmadangthelab
| 시공 : 호산건설㈜ www.hosancon.com
| 설계 · 감리 : ㈜목금토 건축사사무소 031-698-2224 mokgeumto.co.kr
#목금토 건축사사무소 #호산건설 #안마당 더 랩 #BECA코리아 #아메리칸스텐다드
- 이전글잠시 머문집 빌라 블랑쉬2025.12.01
- 다음글농촌주택개량사업으로 지은 노후의 보금자리 홍천 주택2025.11.25
댓글목록
등록된 댓글이 없습니다.