삼대가 모여사는 마당 품은 집 제주 다인하우스 > HOUSE
삼대가 모여사는 마당 품은 집 제주 다인하우스
- 관리자 오래 전 2026.01.12 10:52 HOUSE 인기
-
1,014
0
대지 깊숙이 들어서 두 팔로 감싸 안듯 너른 마당을 품은 집은 삼대가 따로 또 같이 생활하는 삶의 터전으로 자리 잡았다.

마당을 감싸 안은 두 집 같은 한집
건축주 부부는 부모님과 함께 거주하며 어린 자녀를 키우는 젊은 부부로, 삼대가 함께 거주하기에 불편함이 없도록 두 집 같은 한집의 형태를 원했다.
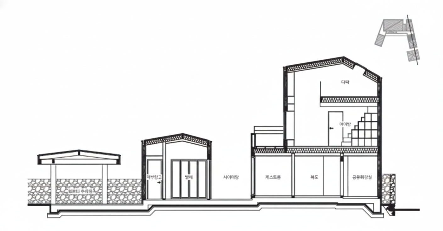
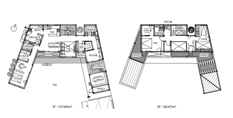
같은 집에서 살지만, 생활공간은 각자의 영역으로 나뉘도록 설계했다. 대지 서쪽에 독립적인 볼륨으로 위치한 부모님 공간은 미닫이문을 통해 중앙 다이닝룸으로부터 완전히 분리된다.
1층은 다이닝룸과 거실을 중심으로 부모님 영역, 게스트룸, 작업실로 나뉘고, 2층 역시 거실과 보이드로 통하는 가족실을 중심으로 안방과 아이 방으로 나뉘는 공간 구조를 가졌다.
개인 공간은 철저히 분리되어 있지만, 공용 공간이 집의 중심에 위치해 가족은 자연스럽게 모여 소통하며 함께하는 시간도 즐길 수 있다.
집이 들어선 제주 해안동은 국제공항, 도청 등 도심과 가까운 지역이다. 집은 도로에 면하여 한라산이 있는 남쪽을 향해 부채꼴로 벌어진 형태로 배치했다.
집을 최대한 대지 깊숙이 배치해 남쪽 마당을 넓게 활용하고자 했다.
ㄷ자로 앉힌 집은 아늑함이 강조된다. 더불어 도로와 대문 사이 회랑을 만들어 도로에서 주택으로 바로 진입하는 것이 아니라, 도로에서 돌담길, 마당을 거쳐 대문으로 들어갈 수 있도록 계획했다.
회랑은 전이 공간의 역할을 하며 안과 밖 사이의 경계선이 부드럽게 흐르도록 한다.
필로티 주차장은 넉넉한 포치가 적용돼 편리하게 이용할 수 있다. 돌담은 집이 위치한 지역적 특성을 드러내며 운치를 더한다. 더불어 외부의 시선을 걸러주는 역할도 한다.

도로와 면해 있는 만큼 프라이버시를 위해 적당한 높이의 돌담을 둘렀고 주택으로의 진입 동선도 도로에서 곧바로 이어지지 않고
회랑을 둘러 간접적으로 연결되도록 했다.

현관에는 미니 벤치를 적용해 생활의 편의성을 더했다. 집안에 들어설 때 창 너머로 조경 공간이 보여 단독주택의 여유를 느낄 수 있다.

거실은 오픈 천장을 적용해 시원하고 탁 트인 시야를 보장한다.

오픈 천장의 거실에서는 가족들이 모두 모여 시간을 보낸다. 채광이 풍부하도록 큰 창을 적용했다.

계단실의 넓은 계단판은 평상으로 활용할 수도 있다.

침대를 배치한 곳에는 작은 코너창을 적용하고, 소파를 배치한 곳에는 통창을 적용해 햇빛의 양을 조절하는 효과를 누린다.
넓게 펼쳐진 집의 하단부를 회색 롱브릭으로 마감해 통일감을 주었다. 2층에는 적벽돌을 시공해 단조로움을 피했다.
각기 다른 각도의 기울기를 가진 지붕은 주택에 입체감을 더한다. 상부의 매스감을 달리해, 한 집이지만 구성원별로 저마다의 특징을 지닌 공간을 누리고 있음을 표현했다.
실내는 화이트톤과 우드톤이 조화롭도록 자연스러운 느낌으로 마감했다. 집안 곳곳의 가구들 역시 무채색 또는 우드 컬러로 골라 배치해 전체적인 톤앤무드가 일관성 있게 유지된다.
집의 중심부인 거실은 오픈 천장으로 계획돼 답답함 없이 탁 트인 느낌을 주었고, 계단실의 계단판은 널찍한 규모로 시공돼 책도 읽고 대화도 나누는 등 또 하나의 ‘실’로서 역할 한다.
부모님의 생활공간 반대편인 1층 동쪽에는 별채를 두어 독서 공간으로 만들었다. 게스트룸과 사이마당을 가운데에 두고 이어진다.
별채에는 폴딩도어를 적용해 야외로 공간이 확장되는 효과를 의도했다. 별채 천장에는 지붕의 빗각이 그대로 드러나도록 해 더욱 생동감 있는 공간이 되었다.
둥근 마당에는 자연과 교감할 수 있도록 키 작은 나무와 꽃들을 심었으며 여러 동선으로 디딤돌을 놓아 집안에서도 다양한 갈래로 산책할 수 있도록 다채로움을 더했다.
주택이 마당을 감싸 안고 있듯 건축주 가족은 이 집에서 서로를 보듬으며 아늑함과 행복감을 누린다. 때로는 함께, 때로는 혼자만의 시간을 보내며 그들만의 이야기를 써내려 가고 있다.

본채와 사이마당을 통해 이어진 별채는 건축주 가족의 취미실 역할을 톡톡히 한다.

다이닝룸 앞의 널찍한 데크는 집과 마당을 매개하며 툇마루로써 기능한다.



1층의 툇마루뿐 아니라 2층의 야외 데크도 널찍한 규모로 조성해 집안에서도 야외 활동의 즐거움을 누릴 수 있다.
HOUSE PLAN
대지위치 : 제주특별자치도 제주시
대지면적 : 525㎡(158.81평)
건물규모 : 지상 2층 + 다락
거주인원 : 5명(부모님, 부부, 자녀 1)
건축면적 : 148.29㎡(44.85평)
연면적 : 198.52㎡(60.05평)
건폐율 : 28.25%
용적률 : 34.78%
주차대수 : 2대
최고높이 : 8.90m
구조 : 일반목구조 + 철근콘크리트구조
외부마감재 : 모노롱브릭타일(그레이)
내부마감재 : 벽·천장 - 실크벽지 / 바닥 -
강마루
시공·주방가구·붙박이장 : 인고래 방세일
설계 : ㈜유타건축사사무소 김창균, 배영식,
이조은, 최민희
건축가 김창균 : ㈜유타건축사사무소
서울시립대학교 건축공학과를 졸업하고, 동대학원에서 석사학위를 취득하였다.
다양한 곳에서 여러 작업에 참여하며 실무경험을 쌓았고,
지난 2009년 ㈜유타건축사사무소를 개소하였다.
서울시 공공건축가이며, 2011년 문화체육관광부에서 주관하는 ‘젊은 건축가 상’을 수상한 바 있다.
일상의 중·소규모 건축물을 바탕으로 하는 손에 닿는 건축과 공간에 관심을 가지고 도시 안에 담아내려고 노력하고 있다.
02-556-6903 | www.utaa.co.kr
- 이전글잠시 머문집 25편 스테이 옥도2026.01.14
- 다음글초록 바다에서 빛나는 겸씨의 집2025.12.18
댓글목록
등록된 댓글이 없습니다.