이 글은 관리자만 볼 수 있어요.
부부의 평생 보금자리 EXOTIC MOOD FOR MY NEST > LIVING & DECO
부부의 평생 보금자리 EXOTIC MOOD FOR MY NEST
- 관리자 24일 전 2025.12.23 11:39 인기
-
115
0
건축주 부부가 평생을 살아갈 마지막 보금자리. 모든 요소가 결코 허투루 결정될 수 없었다. 부부의 취향과 라이프 스타일에 딸의 감각을 더해 완성된 인테리어 사례.



부부의 새로운 둥지에는 온 가족이 흩어졌다 모이고 모였다 흩어진다
대전 도심의 한적함과 여유로움이 느껴지는 주택단지. 부지 배치만을 보고 망설임 없이 땅을 계약한 60대 건축주 부부는 오래 살던 옛집을 떠나 이 위에 평생을 살아갈 집을 짓게 되었다.
평생 살 집이라고 생각하니 업체를 허투루 고를 수 없었다. 부부는 고심 끝에 대학에서 패션을 전공한 딸의 세련된 감각에 모든 걸 맡기기로 결심한다.
딸은 그렇게 부모님이 원하시는 고전적인 인테리어 콘셉트에서 벗어나 젊은 감각과 센스를 나눌 수 있는 인테리어 업체를 선정하게 되었다.
스탠딩피쉬의 윤미선 실장은 뼈대만 있던 2층 단독주택을 처음 만난 뒤, 조경과 내부 인테리어를 하나씩 구상해 나갔다.
평소에는 건축주 부부끼리만 생활하지만, 주말에는 종종 자녀 내외와 손주들이 놀러 와 많은 시간을 함께 보내는 라이프스타일을 고려해 각자의 프라이버시를 존중하되 함께하는 공간도 충분히 누릴 수 있도록 했다.
인테리어는 함께하는 공간과 개인 공간의 명확한 구분으로부터 시작됐다.
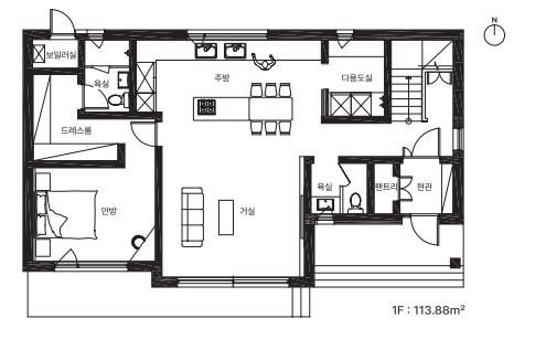
1층은 남편 위주의 공간, 2층은 아내 위주의 공간으로 구성했다. 모던한 분위기로 꾸민 남편의 침실에는 큰 공간을 차지하는 책상보다는 간단한 업무 확인을 위한 미니 책상과 킹사이즈 침대를 두었다.
마치 레지던스 호텔룸을 연상케하는 완성도 높은 남편의 공간은 침실, 드레스룸, 욕실이 한 동선으로 이어져 프라이버시와 생활의 편리함을 보장한다.

오픈 천장이 적용된 거실은 깔끔한 화이트 톤으로 마감해 심플함을 강조했다.

1층 남편 침실은 질감이 돋보이는 대리석 월, 차분한 우드 톤에 시크함이 느껴지는 블랙 톤의 제작 조명으로 포인트를 줬다.
오크 원목 계단판에 금속 난간으로 시공한 계단실.



아치 게이트와 모자이크 타일, 모양이 독특한 거울과 라탄 소재의 하부장을 적용한 이국적인 느낌의 세면 공간.


대리석 패턴의 빅슬랩 타일을 적극적으로 활용해 고급스럽고 화려한 느낌을 주는 욕실.

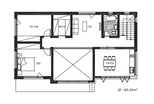
통창이 적용돼 하늘과 정원의 풍경을 마음껏 내다볼 수 있는 2층 아내 침실. 구름무늬가 프린트된 벽지와 침대 패브릭이 서로 비슷한 듯 달라 개성 있는 공간을 만든다.

한쪽 벽면을 모두 석재로 마감하고 라탄 소재 의자와 실링팬, 폴딩도어를 적용해 휴양지의 무드가 느껴지는 가족실.

넓고 깊은 포치 아래에 테이블과 의자를 둬 날씨와 상관없이 야외활동을 할 수 있도록 구성했다.


모임지붕의 사선 형태가 그대로 드러나는 2층은 아내의 주생활 공간이다.


여러 소재의 다양한 질감과 컬러로
이국적인 무드를 표현하다
손님이 방문하더라도 프라이빗한 개인 공간은 사용할 일이 없도록 게스트용 파우더룸과 화장실은 별도로 복도 쪽에 마련했다.
1층 주방은 부부가 식사하거나, 소수 인원이 있을 때 사용하는 데일리한 공간으로 계획됐다.
듀얼 싱크볼을 시공해 더욱 청결하고 편리하게 요리할 수 있도록 했고, 주방 한편의 우드 슬라이딩 도어를 열면 세탁실과 보조 주방이 나와 생활의 편의
성을 높였다. 2층 가족실은 이국적인 분위기의 야외 테라스를 콘셉트로 계획했다. 한쪽 벽 전면에 시공된 석재와 실링팬, 통창으로 내다보이는 동네 풍경에서 풍요로움이 물씬 느껴진다.
이 공간은 온가족이 모여 축구경기를 시청하며 바비큐 파티를 하는 모습을 상상하며 만들어졌다.
폴딩도어를 열어 환기와 채광도 누릴 수 있으며 편리한 사용을 위해 일자 다이닝 공간으로 구성했다. 가족실을 포함한 2층의 천장은 모임지붕의 형태를 그대로 살려 사선으로 떨어지는 천장부가 공간에 입체감을 더했다.
2층 아내의 침실은 프린팅된 수입벽지와 쉐브른 패턴의 원목마루가 조화롭게 어울린다. 2층의 작은 거실과 욕실 역시 아내가 주로 쓸 공간이라 우아하고 여성스러운 느낌을 강조했다.
복도 중간에는 꽤 많은 양의 물건을 수납 및 보관할 수 있는 팬트리도 따로 둬 아내를 위한 맞춤으로 설계했다.
한여름에 공사가 진행돼 무더운 날씨에 고생스러웠던 현장은 이제 건축주 부부의 평생 보금자리가 되었다. 가족들이 모두 모여 왁자지껄 즐거운 시간을 보내기도, 아내와 남편이 각자만의 고요한 시간을 보내기도 할 둥지 말이다.
- 이전글DIY로 부담은 줄이고, 만족도는 높였다 시공이 손쉬운 친환경 DIY 인테리어 페인트2025.12.24
- 다음글이야기가 있는 사계절 정원 LITTLE GARDEN, VARIOUS SCENERY2025.12.23
댓글목록
등록된 댓글이 없습니다.