이 글은 관리자만 볼 수 있어요.
일상과 취향을 담아낸 공간 사용법 > LIVING & DECO
일상과 취향을 담아낸 공간 사용법
- 관리자 오래 전 2025.10.17 11:08 인기
-
473
0
HOME STORAGE IDEA
그림 같은 집을 꿈꾸지만, 살다 보면 정리는 현실이다.
수납을 중심으로 이루어지는 매일의 일상.
이곳은 실용성과 디자인을 한 번에 만족시킨 집이다.


4미터 길이의 공간으로 넉넉한 수납장과 서랍장이 마련되어 있는 현관. 중문을 열면 밝고 유쾌한 분위기의 데이비드 걸스타인(David Gerstein)의 작품이 눈길을 끈다.
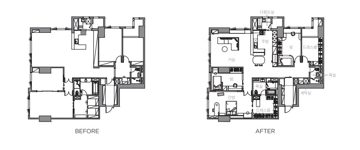
같은 평수의 집이라도 공간을 어떻게 활용하느냐에 따라 집이 더 넓어 보이기도 하고, 좁아 보이기도 한다. 또 같은 구조라 할지라도 그 구조를 어떻게 활용하고 보완하느냐에 따라 공간은 완전히 달라진다.
군더더기 없이 간결한 공간을 지향하며 실용성과 분위기를 모두 잡은 집. 가족들이 좀 더 안락하고 깔끔한 집에서 살길 바라는 마음을 담아 짜임새 있는 인테리어가 진행됐다.
이번 프로젝트는 철저히 거주자의 성향에 맞춰 진행됐다. 소명공간의 양소명 실장은 사전 미팅을 통해 파악한 가족의 라이프스타일을 고스란히 공간 설계에 담아냈다. “디자인 미팅 전,
기존 집을 방문했었는데 구석구석 깔끔하게 정돈된 모습이 인상적이었어요. 그래서 공간마다 디자인을 잡을 때 여기에 어떤 방식으로 수납을 해야 효율적일지를 가장 많이 고민했던 것 같아요.”
공간을 새롭게 단장하면서 가장 신경 쓴 부분은 수납이다. 가족들이 모이는 거실과 주방, 그리고 침실과 욕실에 이르기까지 적재적소에 수납장을 짜 넣는 것에 중점을 두었다.
하지만 수납이 빈틈없이 계획되었다고 해서 공간에 대한 만족도가 높을 리는 없다. 지나친 수납은 공간을 답답하고 좁아 보이게 하기 마련이니까. 양 실장은 수납과 디자인이 적절히 균형을 이룰 수 있도록 고심하며 설계를 진행했다.
그레이 톤을 선호하는 가족의 취향을 담아 전체적인 디자인은 심플한 모던 스타일로 방향을 잡았다. 우선 기존의 어두운 마감재와 무거운 느낌의 클래식한 몰딩은 모두 철거, 공간을 최대한 군더더기 없이 비워냈다.
마감재를 고를 때는 컬러 사용을 최대한 절제하되, 아트웍이나 쿠션 등의 소품을 사용할 때만 컬러를 가미했다. 또 기존의 구조는 크게 흔들지 않는 선에서 동선이나 활용 빈도를 고려해 편리한 요소를 더하는 방식으로 진행했다.
불필요한 구조 변경이 진행되지 않았기에 그에 따른 비용을 절감하는 한편, 제작가구와 하드웨어 등에 좀 더 힘을 실어 결과적으로 한층 업그레이드된 공간이 연출됐다.
보완이 필요한 경우에는 적극적으로 해결책을 제시했다.


화이트와 그레이톤으로 꾸며진 다이닝룸과 주방, 거실이 한눈에 들어와 공간이 한층 넓게 느껴진다.


눈에 도드라지는 수납장 대신 기존의 붙박이장을 활용한 슬라이딩 도어 수납장을 제작했다.

창가에는 윈도우 시트를 마련했다. 따스한 오후 햇살을 받으며, 차를 마시거나 책을 보기에 좋은 공간이다.
내부 구조상 현관 쪽 복도가 짧게 느껴지는 걸 감안해 복도와 안방의 중문을 제거, 시야의 흐름이 끊어지지 않도록 하고 복도 벽면을 따라 간접 등박스를 설치해 공간에 깊이감을 살렸다.
자질구레한 물품이 나뒹굴기 마련인 거실에는 수납장을 투입했다. 단 전체적인 분위기를 고려해 눈에 도드라지는 수납장 대신 기존의 붙박이장을 활용한 슬라이딩 도어 수납장과 가벽형 수납장을 제작했다.
그리고 여기에 윈도우 시트를 더해 자칫 밋밋해보일 수 있는 공간을 한층 다채롭게 연출했다.
넓은 주방 공간에 비해 다소 협소했던 조리대 역시 변화가 필요했다. 기존 구조는 그대로 살리되, 조리대 길이를 살짝 늘리고 측면으로는 다이닝 공간의 벤치를 제작해 공간 활용도를 높였다.
특히 제과제빵학과에 입학한 큰딸을 위해 재료를 보관할 수 있는 넉넉한 하부 수납장을 제작하고 조리대 전면 가벽을 선반처럼 넓게 짜 다용도로 활용할 수 있도록 했다.
조리대를 둘러싼 가벽은 공간이 정돈돼 보이는 효과가 있는데, 이러한 아이디어는 홈바로도 이어진다.
커피머신과 토스트기가 놓인 홈바에 슬라이딩 도어를 달아 사용하지 않을 땐 닫아둘 수 있도록 한 것.
수납과 디자인 모두를 만족시키기 위해 고심한 부분들이다. 튀어나온 벽면으로 가구 배치가 애매했던 안방은 벽의 요철 부분을 침대 헤드로 가려 정리하고 침대 좌우로 화장대와 미니 서재를 배치, 공간을 한층 안정적으로 구성했다.

6_주방과 거실 사이에 제작한 낮은 가벽형 수납장. 두 공간을 자연스레 분리하는 동시에 주방의 자질구레한 살림살이를 가려주는 용도로 활용된다.

단순하고 절제된 거실 공간.

POINT 1_홈바의 슬라이딩 도어
모던한 스타일의 깔끔한 주방을 원한다면, 홈바에 슬라이딩 도어를 달아보는 것도 좋은 방법이다.
선반에 먼지도 덜 끼고 매번 선반 정리에 신경을 쓰지 않아도 되니 편리하다.

POINT 2_인조대리석 붙박이 벤치
조리대 옆 벽면을 활용해 붙박이 벤치를 제작,
그 앞으로 테이블을 두니 자연스레 다이닝 공간이 완성된다. 벤치에는 2~3인이 앉을 수 있어 공간 활용에 탁월하다.

POINT 3_공간활용 200% 히든 책장
제작된 옷장 안에 책장을 매립한 형태로 하단에 바퀴가 달려 있어 손잡이를 당기면 손쉽게 책장을 꺼낼 수 있다. 좁은 공간 활용 뿐 아니라 깔끔한
수납도 가능하니 일석이조다.

싱크대 측면으로는 붙박이 벤치를 제작해 공간 활용도를 높였다.

제빵을 배우는 큰딸을 위해 넉넉한 하부 수납장과 조리대 전면으로 넓은 턱을 제작하는 등 공간을 다용도로 활용할 수 있도록 했다.


무늬목과 베이지톤 마감재로 따스하게 꾸며진 안방. 긴 공간을 활용해 침대 좌우로 화장대와 미니 서재를 배치, 공간을 안정적으로 꾸몄다.
오픈 행거 타입으로 활용도가 낮았던 안방 드레스룸도 기존의 가구를 모두 털어내고 벽면을 따라 붙박이장을 설치, 중앙에 아일랜드 서랍장을 놓아 수납뿐 아니라 동선의 편리함까지 해결했다.
부득이한 경우에는 구조 변경도 진행됐다. 첫 번째 고려대상은 다용도실의 세탁기. 다용도실 문을 열자마자 정면에 위치한 세탁기로 인해 보조 주방을 제대로 활용할 수 없는 상황이었다.
결국 세탁기를 복도의 붙박이장으로 옮기기로 결정, 세탁기와 건조기를 직렬 설치하고 ㄱ자로 선반을 제작해 세탁과 청소 관련 물품 수납까지 해결했다.
여기에 폴딩도어를 달아 더욱 사용이 편리해졌다. 공간의 대변신이 아닐 수 없다. 안방 욕실도 편의를 고려해 구조 변경이 이뤄졌다.
세면대를 사이에 두고 비효율적으로 떨어져 있던 샤워 공간과 욕조 공간을 하나의 부스 안에 넣고 조적 파티션으로 고급스러움을 강조한 덕에 만족도는 배가 됐다.
공간 하나하나 정성을 들이지 않은 곳이 없다.
평범하고 복잡한 일상을 담아내는 수납장 자체가 오브제가 되는 곳. 수납에 대한 유연한 상상과 새로운 사용법을 알려주는 사례가 아닐까 싶다.



INTERIOR SOURCE
대지위치 ≫ 서울시 송파구 | 거주인원 ≫ 3명 | 건축면적 ≫ 230.87m2(69평) | 내부마감재 ≫ 벽_실크벽지. 바닥_티앤피세라믹 포세린타일(수입) | 욕실 및
주방 타일 ≫ 욕실 2개_ 티앤피세라믹 포세린타일(수입) | 수전 등 욕실기기 ≫ 게버릿, 제이바스 외 | 주방 가구 ≫ 제작가구, 블럼 하드웨어 | 조명 ≫ 아고, 라
이마스, 마르셋 외 LED할로겐 | 스위치 및 콘센트 ≫ 르그랑, 융 | 중문 ≫ 금속 슬라이딩 도어(금속+유리) | 파티션 ≫ 금속 파티션(금속+유리) | 방문 ≫ 제작
(필름지 랩핑), 모티스 도어락+일반 도어락 | 붙박이장 ≫ 제작가구 | 시공 및 설계 ≫ 소명공간 010-4849-7141, https://blog.naver.com/somyung_gonggan



- 이전글탄소중립 위한 냉난방 에너지 기술 주목2025.10.23
- 다음글CHARMING WINTER GARDEN 이야기가 있는 사계절 정원2025.10.14
댓글목록
등록된 댓글이 없습니다.